3518 Cloverdale DrTyler, TX 75701




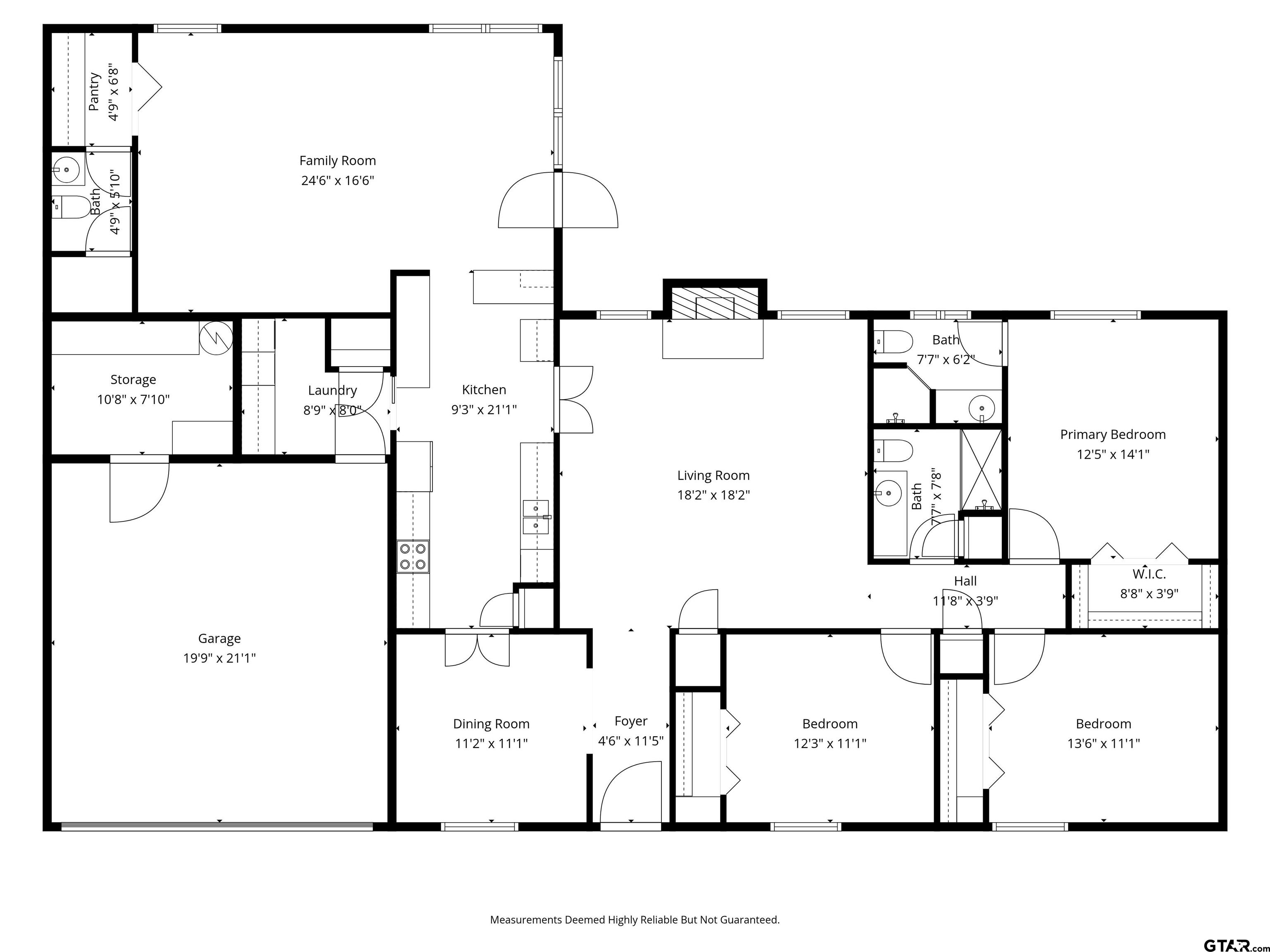
Centrally located, spacious single-story ranch-style home in Tyler with 3 bedrooms, 2 baths, and flexible living spaces. The layout includes a formal living room, a large family room with vaulted ceiling, exposed beams, skylights, a brick fireplace, and a formal dining room. Galley kitchen features stainless steel appliances, abundant cabinetry, a pantry, and a built-in desk with extra storage. The primary suite offers a walk-in closet and a private bath. Secondary bedrooms share a full hall bath. Additional highlights include central HVAC, laundry room, and dedicated storage room. Built-in shelving in both family rooms provides display and storage options. Mix of wood, tile, and vinyl flooring throughout. Outdoor living includes a covered patio overlooking the fenced backyard with mature trees and brick landscaping planters. A wide front yard with a curved walkway and landscaped beds with a working decorative fountain adds curb appeal. The roof was installed in 2020, and the HVAC is dual-zoned. The 2-car garage has a large hobby closet with shelving units. The driveway is wide enough to accommodate a boat or RV and features a 220 Amp outlet. Conveniently located near Rose Rudman Trail and Southside Park, Fresh by Brookshire’s, with quick access to UT Tyler and Tyler Junior College, and within 10 minutes of downtown Tyler and the Hospital District.
| 4 weeks ago | Listing updated with changes from the MLS® | |
| 2 months ago | Price changed to $292,500 | |
| 2 months ago | Listing first seen on site |
The data relating to real estate for sale on this website comes in part from the Internet Data Exchange (IDX) of the Greater Tyler Association of REALTORS Multiple Listing Service. The IDX logo indicates listings of other real estate firms that are identified in the detailed listing information. The information being provided is for consumers' personal, non-commercial use and may not be used for any purpose other than to identify prospective properties consumers may be interested
Last checked - 2026-05-21 01:04 AM UTC
